Používáme cookies k optimalizaci našich webových stránek a našich služeb. Další informace o cookies najdete zde.

Nastavení


Prodej bytu 3+kk na ul. Gregorova v centru Ostravy

Prodej bytu 3+kk na ul. Gregorova v centru Ostravy

REZERVACE

Popis nemovitosti

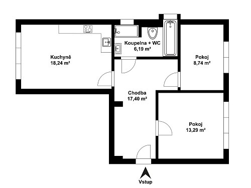
Nabízíme k prodeji byt o dispozici 3+kk v centru Ostravy, situovaný na ulici Gregorova.

Zrekonstruovaný byt o výměře 55 m2 se nachází ve 4. nadzemním podlaží čtyřpodlažního domu, což zajišťuje klidné bydlení. 

V obývacím pokoji, jehož součástí je kuchyňský kout, jsou instalovány venkovní žaluzie na dálkové ovládání, které zvyšují komfort bydlení. Praktické uspořádání bytu umožňuje maximální využití dostupného prostoru a dostatek místa pro nové uživatele.

Skvělá lokalita bytu je jednou z jeho největších předností. Nachází se v těsné blízkosti Komenského sadů, což nabízí ideální příležitosti k relaxaci a aktivnímu odpočinku v přírodě. V okolí najdete veškerou občanskou vybavenost, včetně obchodů, restaurací a škol, což činí tento byt ideálním místem pro rodiny, páry i jednotlivce.

Nezmeškejte příležitost stát se majitelem tohoto atraktivního bytu v centru Ostravy, který je připraven k okamžitému nastěhování.

 

Základní informace

Dispozice:            3+kk
Výměra: 55m²
Umístění: 4.NP/4
Vlastnictví: osobní
Výtah: NE
Stavba: cihlová
Vytápění: dálkové ÚT
PENB: Třída C   97,9 kWh (m²*rok)
Cena: 4.190.000,- Kč
ID: 1860

Kontakt

Ing. Radmila Hladná

Telefon: +420 777 742 647

Email: radmila.hladna@advancereality.cz

 

Kontaktní formulář

Stáhnout PDF