Prodej historické vily v centru Ostravy
Reprezentativní sídlo na prestižní adrese v centru Ostravy. Vila, která osloví klienty, hledající pro své podnikatelké aktivity budovu prvorepublikové architektury v kombinaci s požadavky na zázemí odpovídající moderním trendům.
Špičkové zázemí, parkovací stání na pozemku vily, vynikající zviditelnění firmy a mnohem více nabízí tato nabídka prodeje vily na ul. Českobratrská v Moravské Ostravě.
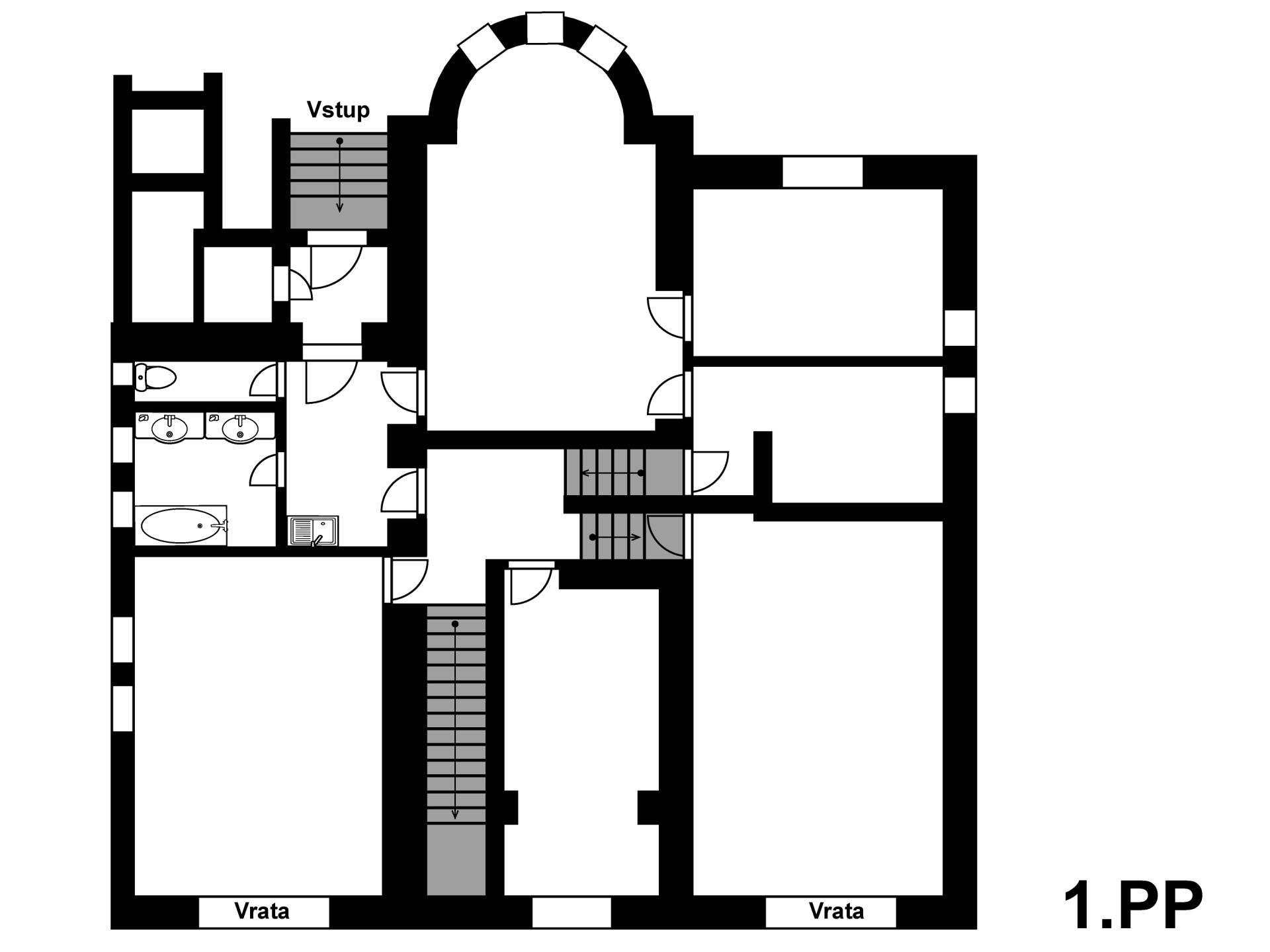
Budova byla postavena dle návrhu architekta Ing. R. Hladiše z roku 1922. Užitná plocha budovy 580m2 plus technické zázemí je rozdělena do čtyř podlaží.
Hlavním vchodem z ulice do budovy vstoupíte do haly s recepcí, dále navazují dvě kanceláře a zasedací místnost se vstupem na balkon.
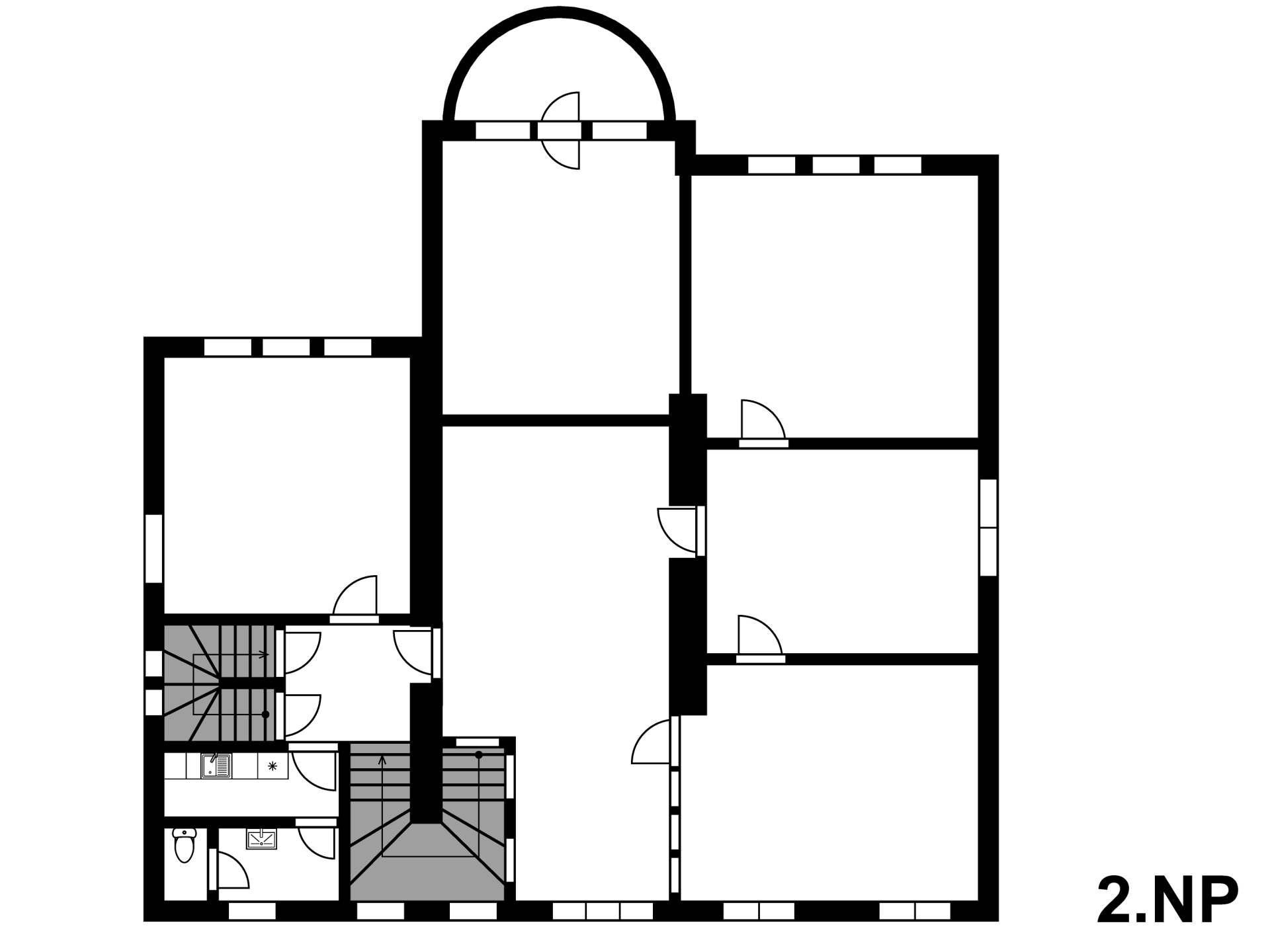
Ve druhém podlaží se nachází reprezentativní přijímací hala, ze které je vstup do prosklené zasedací místnosti a také do čtyř neprůchozích kanceláří.
Třetí patro tvoří čtyři kanceláře.
Každé podlaží budovy je vybaveno moderní kuchyňkou s myčkou a také pánskými a dámskými toaletami.
Kancelářské prostory v suterénu s vlastním vstupem z ulice mohou být odděleny od ostatních částí vily.
Dvě garážové stání s vraty na dálkové ovládání a technická místnost v suterénu rozšiřuje možnost využití budovy pro potřeby menších skladovacích prostor, krytého parkování atd.
Rozložení místností jednotlivých podlaží můžete prohlédnout v přiložených půdorysech ve fotogalerii.
Dům prošel v roce 2020 rozsáhlou rekonstrukcí, která zahrnovala:
Zároveň byly v interiéru zachovány původní prvky z doby prvorepublikové výstavby budovy, zejména interiérové vitráže aj.
Propojení moderního designu s těmito historickými prvky vytváří příjemnou atmosféru v celé budově.
Mezi další významné benefity patří 12 parkovacích míst (dvě garážové a 10 venkovních) a vynikající dostupnost centra Ostravy.
Zveme na prohlídku zájemce, kteří hledají vysoký komfort a nadstandardní zázemí pro sídlo své firmy. Rádi Vám sdělíme veškeré informace, prosím, kontaktujte nás.




| Stav: | Po rekonstrukci |
| Rok rekonstrukce: | 2020 |
| Užitná plocha: | 580m² |
| Plocha pozemku: | 719m² |
| Parkování: | Na pozemku + garáž |
| Počet parkovacích míst: | 10 + 2 |
| PENB: | Třída D |
| Energretická náročnost: | 40kWh/m²/rok |
| Lokalita: | centrum obce |
| ID zakázky: | 1822 |
26.990.000,- Kč